解析仓顶脉冲除尘器的内部结构

仓顶脉冲除尘器是比较小巧的一款除尘设备,并且使用的行业也比较多,在冶金厂、铸造厂等行业均有使用,该设备的占地面积小、排灰方便、粉尘净化能力高。卓越厂家为用户提供仓顶脉冲除尘器结构图,让每一个想了解的用户都能够清楚地知道仓顶脉冲除尘器结构都有哪些部分组成,还可以清晰地知道仓顶脉冲除尘器的外形尺寸等信息。

仓顶脉冲除尘器结构组成部分:(无灰斗)

1、过滤室、2、净气室、3、花板、4、除尘器滤袋、5、除尘器袋笼、6、控制箱、7、脉冲阀、8、气包、9、护栏、10、观察孔、11、天窗、12、喷吹管。

仓顶脉冲除尘器结构组成部分(有灰斗)

1、过滤室、2、净气室、3、灰斗、4、花板、5、除尘器滤袋、6、除尘器袋笼、7、控制箱、8、脉冲阀、9、气包、10、护栏、11、观察孔12、天窗、13、喷吹管。

卓越厂家提供安装仓顶脉冲除尘器的图片:
 
 
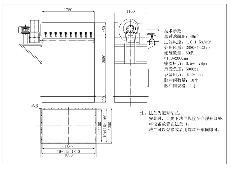
仓顶脉冲除尘器结构图纸:
 
 
仓顶脉冲除尘器属于小型除尘器的一种新型产品,我们卓越厂家的技术人员可以根据每位用户的工况、粉尘浓度、输灰量、等实际参数来设计定制。我们可以免费提供设计定制的仓顶脉冲除尘器结构图纸。有其他的问题可以拨打卓越服务热线:13403272333  我们会二十四小时在线为您服务。 
 
网站图片
2014(C)版权所有
技术支持:中科四方